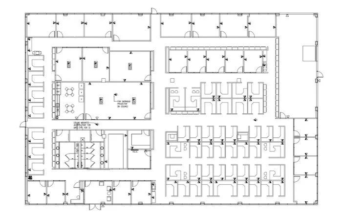
Catalyst purchased this existing 15,900 SF flex building in Plymouth Township with a group of partners/investors in September 2025. The building sits in a small business park directly behind the Plymouth Meeting Metroplex with quick access to the PA turnpike(276) and NE Extension(476). The building can be expanded by 9,100 SF bringing the total building size to 25,000 SF. Ideal for flex space, office, lab, or medical users and available for lease.
For lease: ±15,900 RSF Office Space Available on 1.7 Acres
Expansion Plan: ±9,100 SF
